635 Cedar Street, Qualicum Beach

This beautifully reimagined 3-bedroom, 2-bathroom bungalow, ideally located in the heart of Qualicum Beach’s walkable village neighbourhood, offers a rare blend of warmth, character, and modern comfort. Every detail has been thoughtfully designed, with custom finishes and specifications that create captivating indoor and outdoor living spaces filled with natural light. The newly developed laneway access, along with three sides of wrap around yard spaces create additional potential for living, entertaining, parking etc.

Listing Details

Village Neighbourhood, Qualicum Beach

MLS No. 1012964

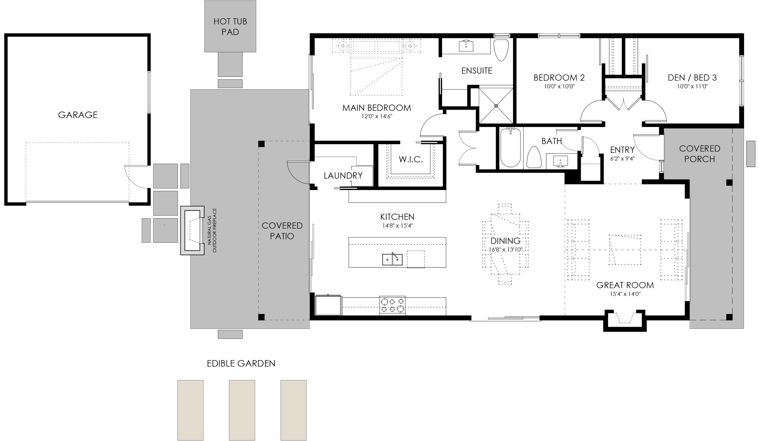
Main Home Size 1,530 sqft (not incl. garage)

Lot Size 6,824 sqft

Bedrooms 3 Bedrooms

Bathrooms 2 Bathrooms

Year Built renovated (1999)

Cabinetry custom

Flooring hardwood

Price $1,599,000

Floor Plan

 Nearby Favorites

  • L’ilette Boulangerie

    French Press Cafe

    De L’ile Restaurant

    Bistro 694

    Fern and Cedar Brewery

    Qualicum Beach Cafe

  • Ravensong Aquatic Center

    Community Park & Trails

    Farmers Market

    Tennis Courts

    Curling Rink

    Lawn Bowling

    Memorial Golf Course

    The Beach

  • Greenbrook

    Faire Living

    Mod Apparel

    Saturday Farmers Market

    Better U Market

    Naked Naturals

Get in touch.